TANGRAM
- CONSTRUCCIÓN
inicio>trazados
geométricos>tangram
Construcción
de las piezas:(versión
PDF para imprimir y entregar a los alumnos. 13 Kb)
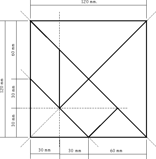
Construiremos el
TANGRAM utilizando un cuadrado de cartulina o cartón fuerte de 120 milímetros
de lado de la siguiente manera:
|
-
Dibujaremos
las diagonales del cuadrado.
-
Haremos
en dos de sus lados unas marcas que los dividan en 30, 30 y 60 milímetros.
-
Uniremos
estas marcas según muestra el dibujo.
-
Borramos
las líneas innecesarias.
-
Y por
fin cortamos las piezas.
|
 |